Dom w malowniczej części POLOP, Alicante
Kontakt
Harmonic Homes
Komfort i natura w idealnej harmonii
Kameralny kompleks nowoczesnych willi położony w jednym z najbardziej malowniczych zakątków Costa Blanca. Usytuowane na wzgórzu, domy oferują spektakularne widoki na morze, góry oraz otaczającą zieleń. To miejsce stworzone z myślą o osobach poszukujących spokoju, prywatności i wysokiego standardu życia, z dala od zgiełku, a jednocześnie w niedalekiej odległości od miasta i plaż.
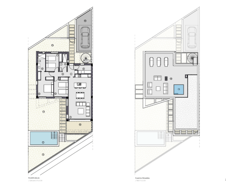
Każda willa zaprojektowana została w nowoczesnym stylu, z dużą dbałością o funkcjonalność i estetykę. W ofercie dostępne są domy z 3 lub 4 sypialniami, z przestronnym salonem, w pełni wyposażoną kuchnią, tarasem oraz prywatnym ogrodem i basenem. Przeszklone ściany, naturalne światło i wysokiej jakości materiały tworzą przestrzeń idealną do wypoczynku i codziennego życia.
Ta inwestycja to nie tylko doskonała lokalizacja i nowoczesna architektura, ale także bliskość natury, górskich szlaków oraz centrum sportowego w La Nucía. W kilka minut można dotrzeć do sklepów, restauracji i lokalnych atrakcji. To świetny wybór zarówno jako drugi dom pod hiszpańskim słońcem, jak i jako inwestycja – dla osób, które chcą połączyć styl życia z komfortem i bezpieczeństwem.
Wybierz willę dopasowaną do Twojego stylu życia
👉 Skorzystaj z opcji personalizacji i stwórz swój wymarzony dom w Hiszpanii














